オフィステナント様募集中【AYA四条烏丸ビル】

物件概要

物件名:
AYA四条烏丸ビル
所在地:
京都市下京区綾小路通烏丸西入童侍者町167
交通:
京都市営地下鉄烏丸線「四条」駅 
出口4まで徒歩約1分
阪急電鉄京都本線「烏丸」駅 
出口23まで徒歩約分
竣工年月:1991年9月
構造:
鉄骨鉄筋コンクリート造地下1階地上9階 
用途地域:商業地域
敷地面積:761.21㎡(230.26坪)
延床面積:5,792.21㎡(1752.14坪)
貸室面積:1189.45坪
駐車場:32台 機械式駐車場
(全長4.90m 全幅1.85m 全高1.57m 重量1.6t)
エレベータ:
計2基900kg×2基(内、1基は荷物兼用)
床荷重:300kg/㎡
空調:各階個別空調

取引態様:貸主
※作成日:2026年3月9日 

 諸条件は予告なく変更する場合がございます。

アクセス

平面図

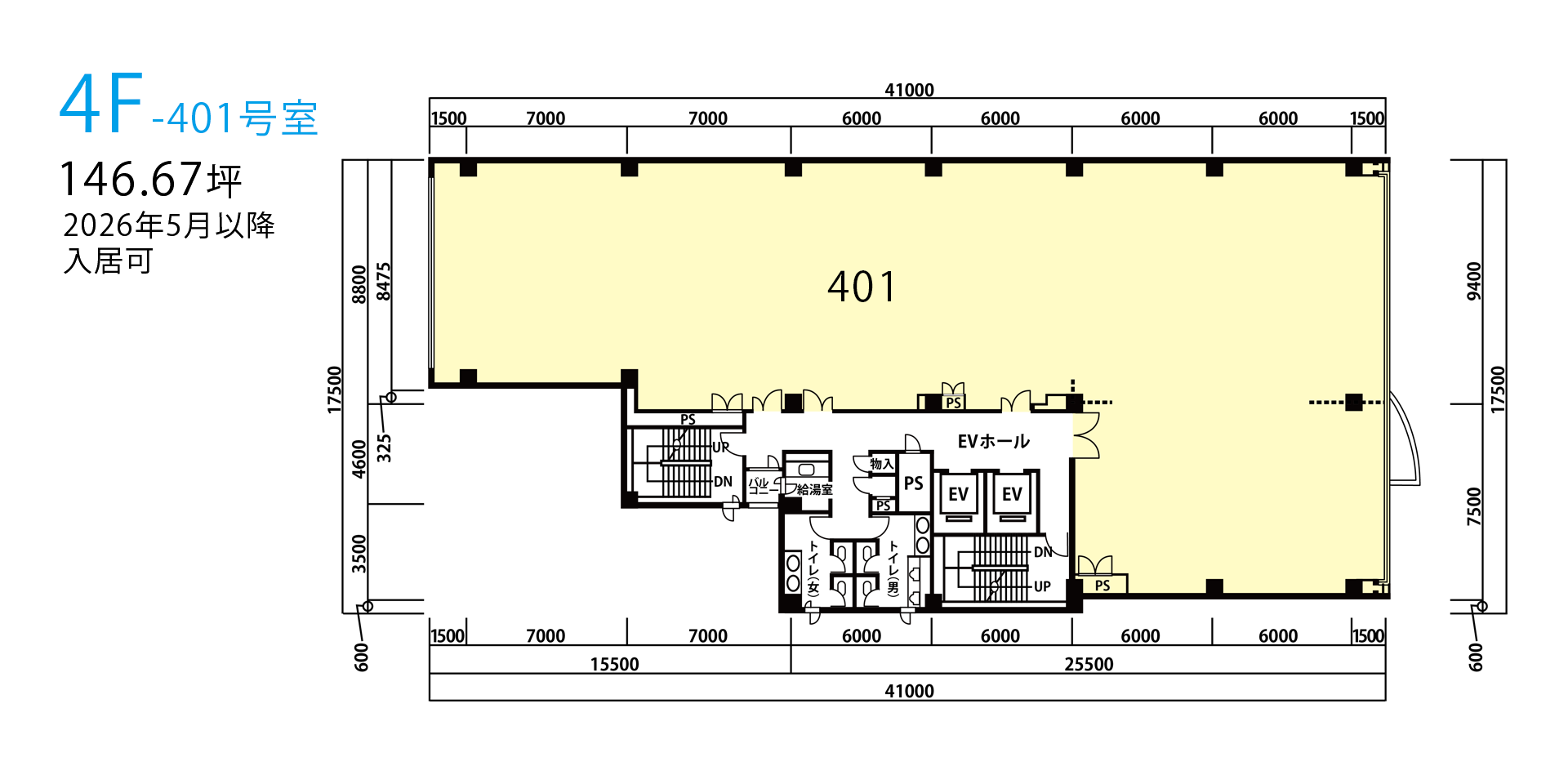
募集条件

募集区画:401号室
賃貸面積:485.35㎡(約146.81坪)
契約形態:
普通借家契約2年(更新料なし)
賃料(税込):
3,229,820円/月  @20,000円/坪(税別)
敷金:
賃料(税抜)の8ヶ月分相当額
礼金:
共益費:
解約予告:
退去予定日の6ヶ月前まで
保証会社:要加入/当社指定
日本セーフティ・フォーシーズより選択
初回保証料:
賃料(税抜)の1ヶ月分相当額
引渡時期:
2026年5月以降応相談
引渡状態:事務所

取引態様:貸主

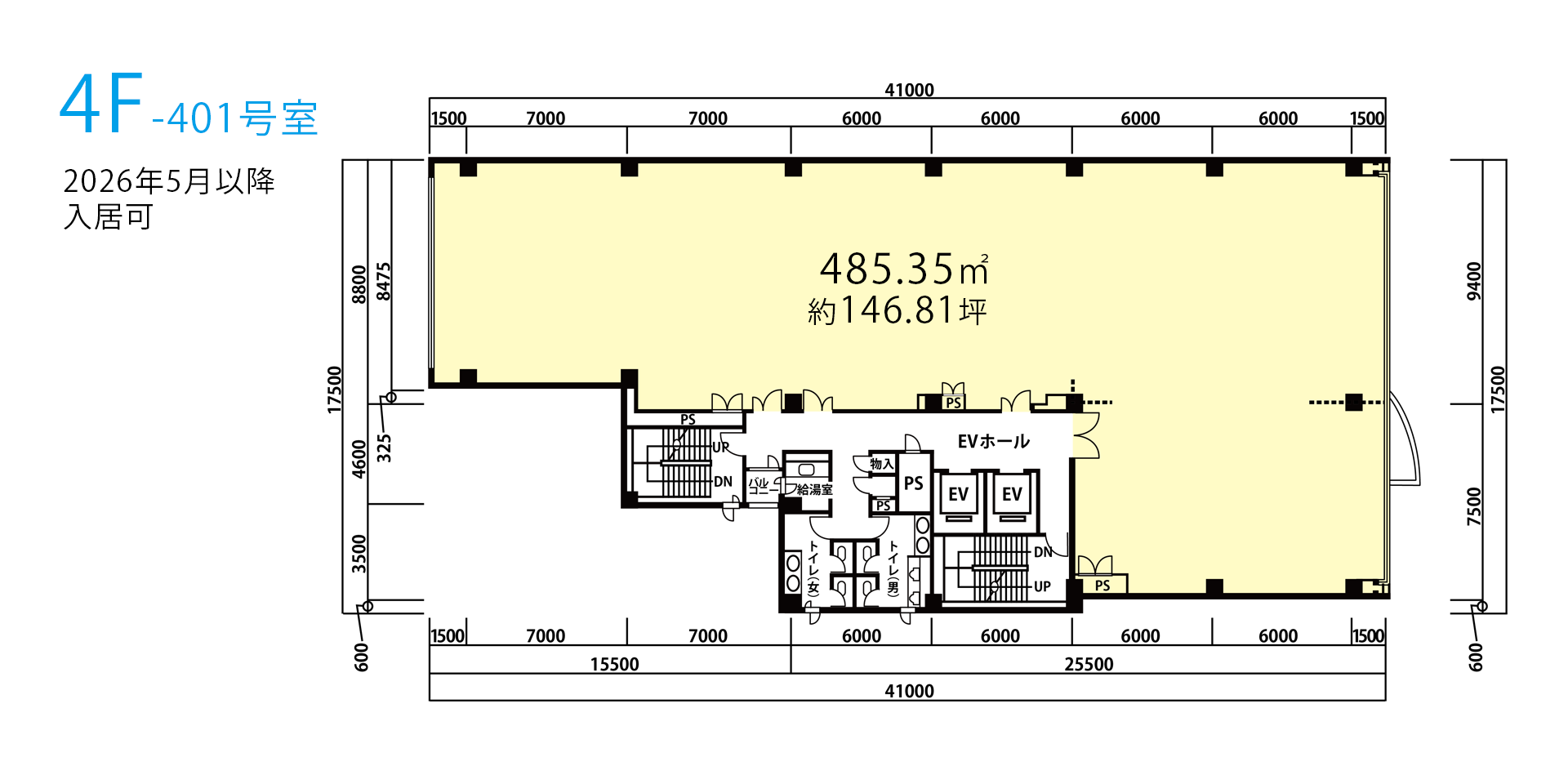
分割案平面図

分割案募集条件

募集区画:401-A / 401-B / 401-C
賃貸面積:
401-A /142.00㎡(約42.95坪)
401-B /242.10㎡(約73.23坪)
401-C /101.25㎡(約30.62坪)
契約形態:
普通借家契約2年(更新料なし)
賃料(税込):
401-A /944,900円/月
401-B /1,611,060円/月
401-C /673,640円/月
敷金:
賃料(税抜)の8ヶ月分相当額
礼金:
共益費:
解約予告:
退去予定日の6ヶ月前まで
保証会社:要加入/当社指定
日本セーフティ・フォーシーズより選択
初回保証料:
賃料(税抜)の1ヶ月分相当額
引渡時期:
2026年5月以降応相談
引渡状態:事務所

取引態様:貸主

上記ボタンもしくは
03-5157-8873
までご連絡ください。
※お気軽にお問い合わせください※

お問合せフォーム

 お電話もしくは下記フォームよりご連絡ください。
 翌営業日以内にご連絡させていただきます。
フォームから送信された内容はマイページの「フォーム」ボタンから確認できます。
送信したメールアドレスでお知らせ配信に登録する
送信
◼️会社概要
 商  号 :株式会社 レーサム Raysum Co.,Ltd.
 設  立 :1992年5月1日
 代 表 者:代表取締役社長 小町 剛
 所 在 地:東京都千代田区霞が関3-2-1 霞が関コモンゲート
       西館 36階
 連結純資産:756億27百万円(2025年9月30日現在)
 免 許 等:・宅地建物取引業 東京都知事(8)第63142号
       ・不動産鑑定業 東京都知事(5)第1569号
       ・不動産特定共同事業 東京都知事 第47号
       ・一級建築士事務所 東京都知事 第55605号
       ・金融商品取引業第二種金融商品取引業
        関東財務局長(金商)第1150号
       ・金融商品取引業投資助言・代理業
        関東財務局長(金商)第1150号
       ・賃貸住宅管理業 国土交通大臣(01)第003936号
加盟協会   ・一般社団法人 日本投資顧問業協会
       ・一般社団法人 第二種金融商品取引業協会